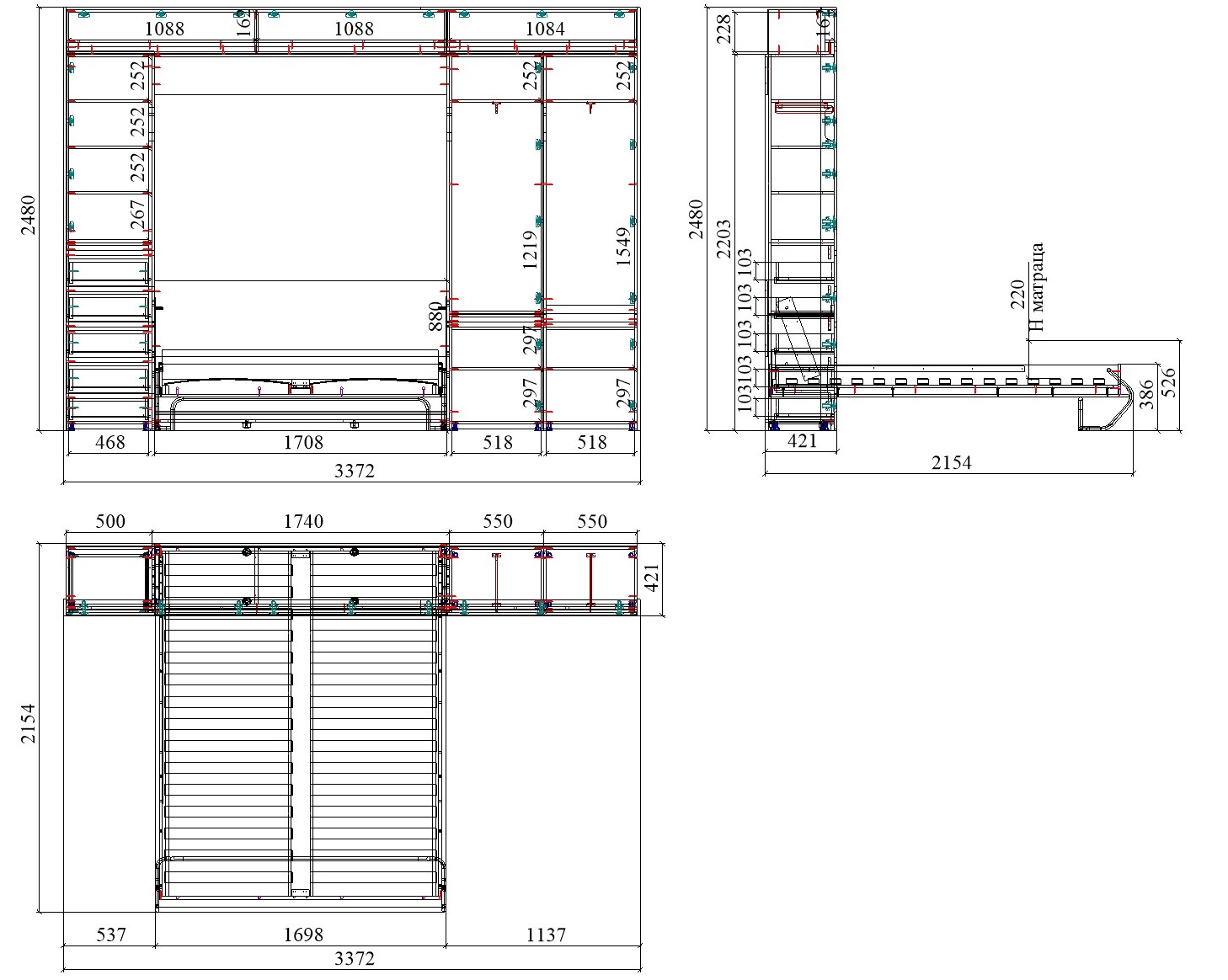
Двухспальная кровать с шкафами для хранения __ 170 000 руб


В двухкомнатной квартире спальня была переделана в детскую комнату, а гостиная трансформировалась в спальню-гостиную. Пожелание клиентов было, чтобы в комнате был полноценный диван и полноценное спальное место. Но в тоже время, если в одной комнате будет находиться двухспальная кровать и диван, то свободного место в ней не останется. Поэтому единственное решение было установить двухспальную шкаф-кровать трансформер со шкафами для хранения. Которая визуально, в сложенном виде, не загромождает пространство, потому что цвет был выбран в тон окрашенных стен и находится в проеме между стенами. И вытянутая прямоугольная комната стала более правильной квадратной формы, так как мебель была смонтирована на короткой стороне.

Ресурсы


Ссылки на наши ресурсы на других площадках

Контакты


Телефон

+7 (908) 319-27-51

Адрес

⌂ Омск, 2-я Солнечная улица, 46Ак1